Ufficio vendesi Centro Direzionale di Napoli c.a mq. 140 con due posti auto all’Isola E sull’Asse Verde.
L’edificio E2 è un moderno complesso condominiale con 6 piani furi terra e due piani interrati, servizio di portierato, due ascensori veloci, ideale per studi professionali, aziende o investitori che cercano una sede funzionale in un contesto organizzato e sicuro. L’area è ben tenuta, con ampi spazi pedonali curati e un’atmosfera dinamica grazie alla presenza di numerose attività commerciali e uffici di rappresentanza.
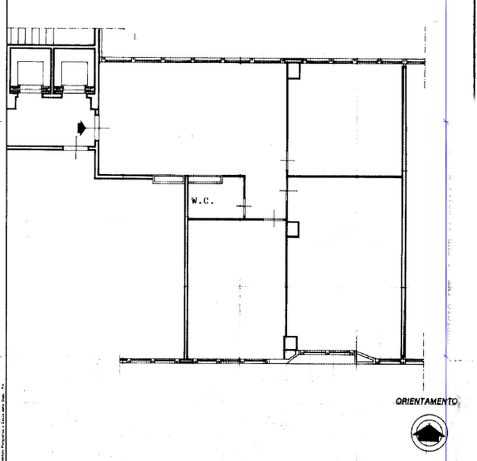
L’ufficio ha un ampio ingresso, che costituisce la sala d’attesa con una comoda reception, alle cui spalle c’è una stanza in cui sono allocate armadiature per archivio, apparecchiature tecniche, è adibita a sala snack. Segue una ampia stanza e, sul fronte opposto, abbiamo un salone, una camera grande e un bagno.
L’isola E del Centro Direzionale di Napoli è una delle più comode e centrali del complesso. Si trova nei pressi della fermata della nuova metropolitana, della circumvesuviana e del Tribunale di Napoli e a pochi passi dai principali servizi — bar, ristoranti, uffici pubblici, e parcheggi custoditi — ed è facilmente raggiungibile sia in auto che con i mezzi.
Mezzi di collegamento; Bus 530, A37, A3N, R5 – TRENO EAV L1, L8 e L9 – Metro: L1 e L2
E’ possibile visitare l’immobile previo appuntamento telefonico al seguente numero 081.2512324. Vi invitiamo a contattarci, anche tramite WhatsApp al numero 3469681152 , per chiedere ulteriori informazioni, un nostro agente sarà pronto a rispondere alle vostre domande con professionalità e cortesia. Potete contattarci anche con email al seguente indirizzo: immobiliare@fulviotrombetta.it
Ufficio vendesi
